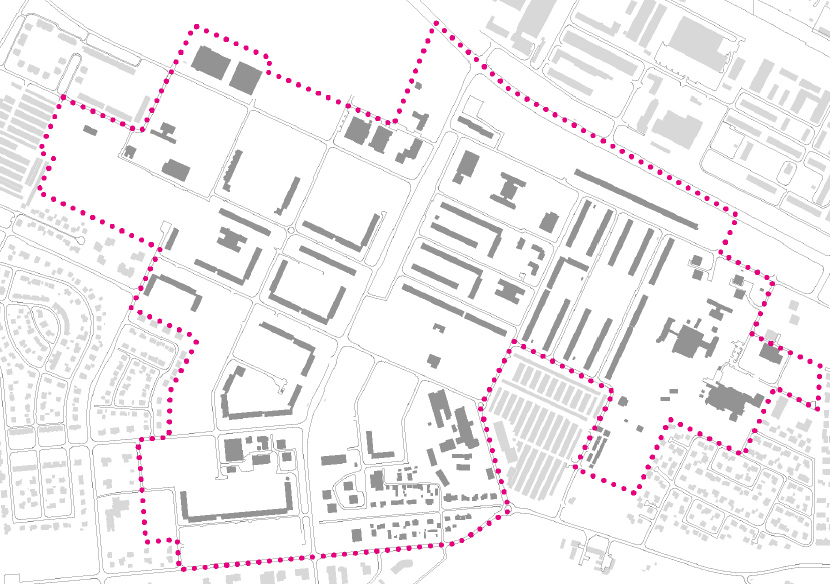
Integriertes Handlungskonzept Obere Talsandterrasse

Zu fast gleichen Anteilen sind die Mittel in die Förderung von Erschließungs- und Freiflächenvorhaben (ca. 46 %) sowie Baumaßnahmen (ca. 43 %) geflossen. Ferner wurden die Mittel zur Begleitung der Gesamtmaßnahme (ca. 9 %) und für Untersuchungen und Gutachten (knapp 2 %) verwendet. Gefördert wurde u.a. der Soziale Kietz AquariUM, die Grundschule Am Waldrand inkl. Aula-Anbau sowie der Sportkomplex Külzviertel.
Mit der fünften Fortschreibung des Integrierten Handlungskonzeptes erfolgt für das Programmgebiet Obere Talsandterrasse in Schwedt/Oder eine Aktualisierung und Konkretisierung der vorherigen Handlungskonzepte und eine Positionsbestimmung der Stadtteilentwicklung – auch vor dem Hintergrund in den nächsten Jahren aus der Förderkulisse Soziale Stadt bzw. Sozialer Zusammenhalt sukzessive auszusteigen.
Unsere Kontaktdaten
Stadtteilmanagement Obere Talsandterrasse in Schwedt/Oder
E-Mail: stm.schwedt@weeberpartner.de
Telefon: 0159 06403224
