Jüdischer Friedhof
Hinweis: Den Schlüssel für den jüdischen Friedhof Schwedt/Oder erhalten Besucherinnen und Besucher im Stadtmuseum Schwedt/Oder (Tel. 03332 23460) oder im Jüdischen Museum Schwedt/Oder (Tel. 03332 834024). Bitte beachten Sie die Öffnungszeiten. Dankeschön!
Dem jüdischen Friedhof – „Bet-ha-Chajim“ (Haus des Lebens) oder auch „Bet-Olam“ (Haus der Ewigkeit) – genannt, kommt im Judentum eine besondere Bedeutung zu. Im Glauben an die leibliche Auferstehung der Toten am Ende der Tage gilt das Grab als ewiger Besitz des Ruhenden und kann somit nicht aufgegeben werden. Mit der Einhaltung der Totenruhe und der Pflege der Friedhofsanlage wird das religiös-ethische Gebot zur Ehrung der Toten, die wehrlos sind, eingehalten. Die Einrichtung eines Friedhofs ist deshalb stets das erste Anliegen einer neu gegründeten jüdischen Gemeinschaft.
In Schwedt gab es schon im 17. Jahrhundert einen Begräbnisplatz, zu dem auch die Angermünder Juden ihre Toten gebracht haben sollen. Ein schriftliches Zeugnis zum bis heute erhaltenen Friedhof findet sich jedoch erst in den Akten der jüdischen Gemeinde aus dem Jahr 1815 und zwar anlässlich des Einbaus eines Schlosses am Eingangstor. 1861 wurde ein zusätzliches Stück Land vom Magistrat erworben und ein Totengräberhaus „mit Wohnung und Wagenschauer“ gebaut. Man schloss einen Vertrag mit dem Maurer Heinrich Noë. Er durfte in dem Haus wohnen, sollte dafür aber Aufsicht über den Friedhof führen und alle bei Beerdigungen anfallenden Arbeiten übernehmen. Eine 1880 beantragte erneute Erweiterung des Friedhofs scheiterte an der Planung der Eisenbahnlinie.
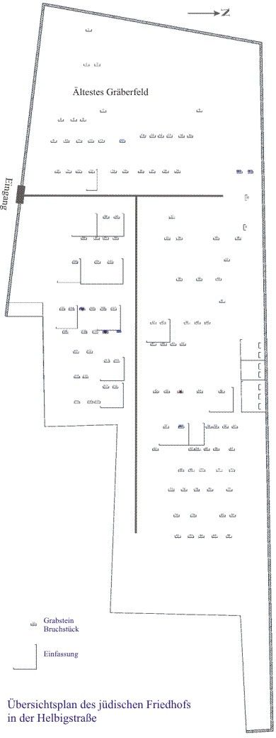
Der Friedhof liegt heute an der Helbigstraße, unmittelbar neben den Bahngleisen. Das von einer Mauer umgebene Gelände hat eine Ausdehnung von ca. 75 m in Ost/West- und 25 m in Nord/Süd-Richtung. Auf der Südseite befindet sich ein zweiflügeliges Metalltor und rechts daneben das ehemalige Totengräberhaus.

Zwei Hauptwege teilen die Friedhofsanlage in drei Bereiche. Vom Eingangstor führt ein Weg in nördlicher Richtung geradezu auf den ältesten erhaltenen Grabstein. Es handelt sich dabei um das Doppelgrab des Ehepaars Levin Marcus (gest. 1818) und Täubchen Schwedter (gest. 1822). Das links neben diesem Weg gelegene westliche Gräberfeld ist das älteste. Die hier noch erhaltenen Grabsteine tragen Sterbedaten aus der Zeit von 1822 bis 1869.

Durch das östliche Gräberfeld läuft ein zweiter Hauptweg. Links dieses Weges, im nordöstlichen Bereich, liegen Gräber aus der Zeit von 1871 bis 1881, sowie aus dem 20. Jahrhundert. An der verputzten Nordmauer ist eine Tafel angebracht, die an die Gefallenen des Ersten Weltkrieges erinnert. Außerdem befinden sich an dieser Mauer mehrere Familiengrabmale.
Insgesamt sind heute noch 121 Steine erhalten. Die überwiegende Zahl der Steine ist zweisprachig, hebräisch und deutsch, beschriftet und zwar in der Mehrzahl so, dass die hebräische Inschrift auf der Ostseite und die deutsche auf der Westseite steht. 22 Steine tragen nur eine deutsche Inschrift und 2 Steine nur eine hebräische. Die Steine, die ausschließlich deutsch beschriftet sind, stammen alle aus dem 20. Jahrhundert.

Die beiden Inschriften unterscheiden sich sehr grundsätzlich, und zwar sowohl in den persönlichen Daten, Name sowie Geburts- und Sterbedatum, als auch in dem zusätzlichen Text, der in der Regel ein Lob des Verstorbenen ausdrückt. Der Name in der deutschen Inschrift ist der bürgerliche Name, wie ihn die Juden in Preußen seit 1812 trugen. Die hebräische Inschrift nennt diesen bürgerlichen Namen nur in Ausnahmefällen. Hier wird die jüdische, traditionelle Namensgebung, wie sie bis ins 18. Jahrhundert üblich war, fortgesetzt. Es wird der Vorname des Verstorbenen und der Name seines/ihres Vaters genannt.
Die Lebensdaten (Geburt und Tod) werden in den deutschen Inschriften nach dem bürgerlichen (gregorianischen) Kalender angegeben. Die hebräischen Inschriften nennen meist nur das Sterbedatum, nur sehr selten auch das Geburtsdatum. Beide werden nach dem jüdischen Kalender angegeben.
In hebräischen Grabinschriften wird häufig aus der religiösen Literatur, besonders der Bibel, zitiert. Es handelt sich dabei meist nicht um vollständige Zitate eines ganzen Bibelverses, sondern nur um einzelne geläufige Redewendungen. Auf dem Schwedter Friedhof fällt jedoch auf, dass sehr oft (auf 51 Steinen) ein vollständiger Bibelvers wiedergegeben wird und zwar sowohl innerhalb der hebräischen als auch der deutschen Inschrift. Die Verse sind häufig dem Psalter entnommen, aber auch aus Hiob, den Propheten oder den Sprüchen Salomos wird gern zitiert.

Ausschmückungen finden sich besonders auf den älteren Grabsteinen (bis 1876) und fast nur auf der Seite mit der hebräischen Inschrift. Meist handelt es sich um schlichte florale Muster, ausgeführt als Relief oder als Rillendekor. Der Grabstein von Israel David Löwenheim (gest. 1845) zeigt eine Levitenkanne als Zeichen für die levitische Herkunft der Familie. Die segnenden Hände als Zeichen priesterlicher Abstammung sind auf diesem Friedhof nicht vertreten.
Viele Schwedter jüdische Familien haben über mehrere Generationen in der Stadt gelebt. Vorfahren der Familien Löwenberg, Ehrenbaum, Schwedter und Goldstein waren bereits 1720 hier ansässig. Die 1812 errungene Niederlassungsfreiheit führte schnell zu einer Vergrößerung der Gemeinde. Aus der Stadt Tütz in Westpreußen kamen mindestens sieben Familien: Seelig, Löwenheim, Wangenheim, Meinhardt, Pincsohn, Goldapp und Eppenstein. Einige Zuwanderer heirateten in alteingesessene Familien ein; auch ihre Familiennamen finden wir noch heute auf erhaltenen Grabsteinen, z.B. Lobatz, Libbert, Mannheimer, Michaelis und Goldschmidt.
1938 wurde der Schwedter jüdische Friedhof geschändet und musste kurze Zeit später an die Stadt verkauft werden. Der letzte Grabstein auf dem Friedhof wurde nach 1945 für Hugo Meinhardt aufgestellt. Er starb am 3. Dezember 1942 und wurde von seiner Haushälterin und Nachbarin heimlich neben seiner Frau beigesetzt.

1950 wurde das Gelände an den Verband der jüdischen Gemeinden in der DDR zurückgegeben. In jüngster Zeit wurden umfangreiche Restaurierungsarbeiten durchgeführt, um dieses wertvolle Denkmal der Stadtgeschichte für die Zukunft zu erhalten.
siehe auch
Jüdische Friedhöfe in Brandenburg
Jüdische Friedhöfe in Polen auf den Gebieten der ehemaligen Provinz Brandenburg
